RT 103811-et
Märgade ruumide tarindite remont. Ehitusremont
Kirjeldus
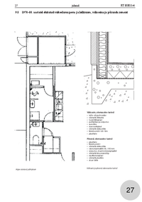
Selles juhendis on esitatud projekteerimisjuhised korteri märgruumide remon diks. Põhirõhk on suunatud märgruumide tarindite projekteerimisele. Juhen disse valitud konstruktsioonide, hüdroisolatsiooni- ja pinnakattelahendused on tavapäraselt kasutatud lahendused. Lisaks on käsitletud tehnosüsteemide lahendusi märgruumides. Juhend on rakendatav elamute, majutus-, äri- ja büroohoonete märg- ja sotsiaalruumide remondi projekteerimisel.
Märgruumi tarindeid on käsitletud juhendkaardis RT 103810-et Märgruumi tarindid
Teenuse sisu nägemiseks on vaja sõlmida teenusleping!
