RT 82-10605-et
Puithoonete akna- ja ukseliitmikud
Kirjeldus
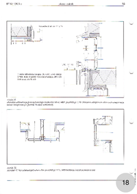
Käsitletakse akende ja uste liitumist puitsõrestikvälisseinaga ning esitatakse katuseakende alternatiivseid lahendusi. Akna ja ukseava mõju sõrestikutarinditele ning välis- ja siseliistudele näitlikustatakse näidistega. Juhised on peamiselt ette nähtud juhindumiseks ehitusplatsil, kuid neid kohaldatakse ka elamute tööstuslikule tootmisele. Näidistel on esitatud puitvoodriga fassaadid, kuid lahendused on kohaldatavad ka plaatvoodrite korral.
Teenuse sisu nägemiseks on vaja sõlmida teenusleping!
