RT 85-11020-et
Metallist sademeveesüsteemid
Kirjeldus
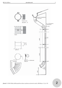
RT-juhendkaardis antakse juhiseid metallist räästarennidele ja sademeveetorudele, nende mõõtmete ja paigaldamise kohta.
RT 85-11020-et
RT-juhendkaardis antakse juhiseid metallist räästarennidele ja sademeveetorudele, nende mõõtmete ja paigaldamise kohta.