RT 88-10743-et
Asendatud 29.04.2021Puittrepid
Kirjeldus
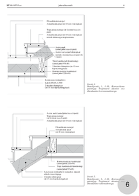
RT-juhendkaardis käsitletaksepuidust sisetreppe. Juhised on eelkõige ette nähtud kohapeal ehitamiseks. Treppe on üldiselt käsitletud RTjuhendkaardis RT 88-10470-et Trepid ja kaldteed ning treppidega seotud mõisteid RT-juhendkaardis RT 88-10129-et Trepid, sõnastik. Puitelamu tarindeid käsitletakse täpsemini RT-juhendkaardis RT 82- 10820-et Väikeelamu puittarindid, RT 82- 10852 Puittarinditega väike korrusmaja ja RT 82-10838 Puitkorruselamu tarindid, sisevoodreid RT-juhendkaardis RT 82- 10582 Puitsisevoodrid ja puitpõrandaid RT-juhendkaardis RT 84-10617 Puitpõrandad.
