RT 95-11152-et
Bürooruumid, ruumiprojekt
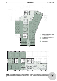
See juhend kuulub bürooruumide projekteerimist käsitlevasse sarja, kuhu kuuluvad veel RT 95-11151-et, SIT 92-610100 Bürooruumid üldised projekteerimisalused ja RT 95-11153-et, SIT 92-610102 Bürooruumid töökohaprojekt. 1 Sissejuhatus Bürooruumid projekteeritakse ettevõtte ja selle personali tegevuse, tööprotsesside ja tööülesannete nõuete kohaselt. Harilikult on projekteerimise eesmärk paindlikult muudetav töökeskkond, kust leiduks funktsionaalseid töökohti erinevate tööde ja muutuvate tööolukordade tarvis. Selliste mitmekesiste ruumidega büroode kohta kasutatakse nimetust multifunktsionaalne büroo, RT 95-11151-et, SIT 92-610100 Bürooruumid, üldised projekteerimisalused. Multifunktsionaalses büroos on eraldi piirkondi ja ruume, mille hulgast töötaja saab valida sobivama konkreetse tööülesande või -olukorra tarvis. Töökoht võib toetada näiteks keskendumist või vastasmõju. Kogunemiskohad ja -ruumid süvendavad büroo kasutajate vastasmõju ning edendavad selle läbi ettevõttesisese info liikumist. Vaikset ja taandumisruumi
